€ 849.000,- k.k.
“Een parel in het monumentale centrum van Zwolle”
Binnenkort komt deze stadsvilla beschikbaar voor een nieuwe bewoner/liefhebber van monumenten.
In de periode 2017-2020 is zowel het in- als het exterieur van het herenhuis, onder leiding van deskundige aannemers en installateurs gerestaureerd en voorzien van nieuwe duurzame installaties en inrichtingen van keuken en sanitair,
Met name imposante en karakteristieke serre aan de voorgevel is geheel herbouwd waarbij de constructie en de trapopgang zijn vervangen door nieuwe stalen balken en het houtsnijwerk van de balustrade en het glazen dak is vernieuwd
De woning straalt weer van geluk en is klaar voor een nieuwe gebruiker.
Charme, privacy, originele detaillering zijn opvallende kenmerken van deze unieke woning.
Dit bijzondere herenhuis met diepe voortuin, ligt verscholen aan de prachtige Wilhelminasingel met karakteristieke en voorname half vrijstaande herenhuizen en villa’s.
Indeling
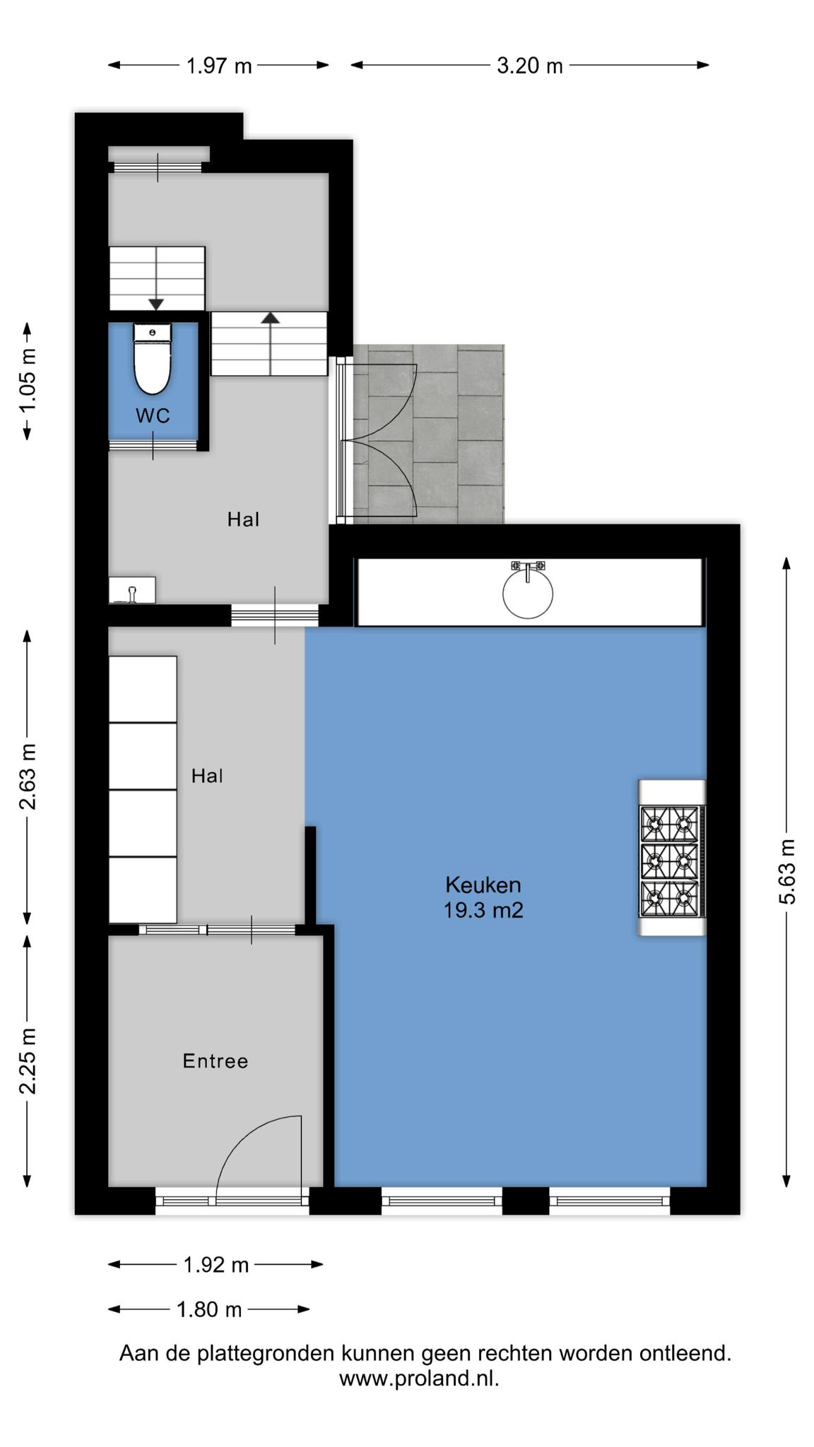
Via de voortuin en de overdekte entree met buitenberging, komt u in de vestibule met ruimte voor garderobe en de gang met provisiekasten en toilet met portaal.
de sfeervolle woonkeuken in een lichte en neutrale kleurstelling is voorzien van alle gangbare apparatuur, waaronder een kookeiland in de authentieke schouw met oude tegels. Vanuit de keuken heeft u zicht op de tuin met terras.
Het trappenhuis leidt naar de 1e verdieping met
een fraaie en originele stijlkamer met marmeren schouw. een hoog prachtig bewerkt Jugendstil plafond met rozetten.
De openslaande deuren geven toegang tot de overdekte veranda met prachtig houtsnijwerk en via een bewerkte stalen trap komt u in de tuin.
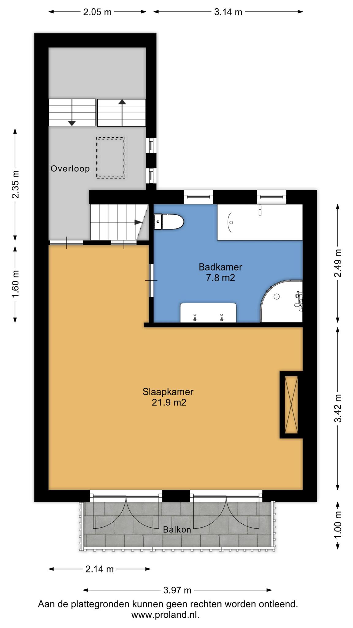
de trap naar de 2e verdieping geeft toegang tot
een sfeervolle slaapkamer met groot balkon en een fantastisch uitzicht naar de stadsgracht en de Sassenpoort;
aansluitend bevindt zich een ruime badkamer met ligbad/jacuzzi, douchecabine, wastafelmeubel, design radiator en wandcloset.
op de overloop is een kast voor de wasmachine.
de vaste trap naar de 3e verdieping met
een ruime werk/slaapkamer met toegang tot een klein, maar bijzonder dakterras op het N-W en bergruimte achter de knieschotten.
in de hoek bevindt zich een kleine badkamer met douche, toilet en wastafel.
Door de dakkapel en de dakvensters heeft u licht en zicht op het gevarieerde dakenlandschap van het monumentale centrum .
De sporenkap is geïsoleerd en geeft een fraai beeld van de oorspronkelijke bouwstijl.
De volgende kenmerken zijn vermeldenswaard
* bouwjaar circa 1870;
* vloeroppervlak ca. 145 m²;
* inhoud ca. 581 m³;
* tuin ca. 120 m²;
* licht eiken visgraat vloeren;
* schouw met gashaard;
* trappenhuis met bordestrap en ornamenten;
* gas-cv (Remeha HR combiketel);
* airconditioning en elektrische boiler;
* thermopane beglazing en dakisolatie;
* recent volledig gerenoveerd.
Voor verdere informatie en foto’s kunt u een brochure aanvragen.
Aanvaarding: in overleg.
Richtprijs : € 849.000,– k.k.
- 122 m2
- 175 m2
- 2
Features Wilhelminasingel 1
Overdracht
| Koopprijs | € 849.000,- k.k. |
|---|---|
| Aanvaarding | In overleg |
Oppervlaktes en inhoud
| Perceel oppervlakte | 175 m2 |
|---|---|
| Woonoppervlakte | 122 m2 |
| Inhoud | 580 m3 |
Bouw
| Soort | Herenhuis |
|---|---|
| Bouwvorm | Bestaande bouw |
| Bouwjaar | 1870 |
| Dak type | Schilddak |
| Isolatievormen | Dakisolatie, Gedeeltelijk dubbelglas, Voorzetramen |
Indeling
| Aantal verdiepingen | 4 |
|---|---|
| Aantal kamers | 4 |
| Aantal slaapkamers | 2 |
| Aantal badkamers | 2 |
Monthly costs
Location Wilhelminasingel 1
Voorzieningen
- De Jenapleinschool 362 m Enkstraat 69 ZWOLLE
- Viaa-Gereformeerde Hogeschool 517 m Grasdorpstraat 2 ZWOLLE
- Landstede 1 km Assendorperdijk 55 ZWOLLE
- Viaa-Gereformeerde Hogeschool 517 m Grasdorpstraat 2 ZWOLLE
- Theologische Universiteit van de Gereformeerde Kerk (Vrijg) in Nederland 14 km Broederweg 15 KAMPEN
Centraal gelegen informatie over de buurt
Aantal inwoners
In de gemeente
125.548