Ga naar inhoud

Marsweg 40

8013 PD Zwolle

De Graaf van Vilsteren Garantiemakelaars
Contact me

Verkocht

€ 1.000.000,- k.k.

  1. Home>
  2. Business properties>
  3. Koop Zwolle Marsweg 40

Marsweg 40, Zwolle

Op industrieterrein Marslanden opvallend gelegen Bedrijfspand met kantoorruimte in twee lagen en een efficiƫnt ingedeeld buitenterrein met ca. 20 parkeerplaatsen en voldoende ruimte voor opslag van materialen zowel op het terrein als onder de overkapping.
Het pand is goed onderhouden en multifunctioneel ingericht t.b.v. een opleidings- en praktijkcentrum voor de bouw.
Thans wordt het pand verhuurd aan het Leger des Heils en vinden er bouw gerelateerde activiteiten plaats.
Een deel van het object wordt als kantoor- ontmoetings- en vergaderruimte gebruikt.
Op het omheinde en afgesloten terrein is voldoende eigen parkeergelegenheid

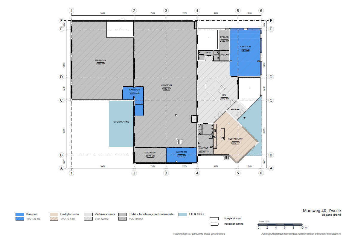
De indeling is als volgt.

Begane grond:

ca. 900 m2 vvo bedrijfsruimte, hal en werkplaats
ca. 125 m2 vvo kantoorruimte
ca. 100 m2 overkapping en opslagruimte
verdeeld in entree, kantoren, toiletgroep, keuken, kantine, c.v. ruimte, dataruimte.

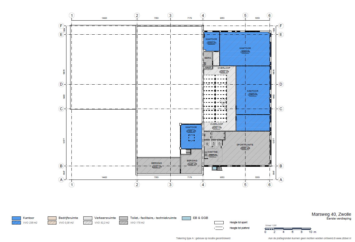
Verdieping:
ca. 460 m2 vvo kantoorruimte inclusief verkeersruimte en algemene ruimten

Algemeen:

* onder architectuur gebouwd in 1992
* geisoleerde gevels en daken
* dubbel glas en lichtstraat
* energielabel C
* traditioneel gebouwd
* c.v. ketels met radiatoren
* heaters in de hal
* airconditioning in de kantoren
* installaties incl. krachtstroom
* verhard buitenterrein met hekwerk
* representatief object
* vriendelijke uitstraling
* voor velerelei bedrijfsdoeleinden geschikt
* meetrapport aanwezig

Aanvaarding : in overleg
Oplevering : leeg of in verhuurde staat ( Leger des Heils)
BTW : bespreekbaar
Richtprijs : € 1.000.000,= k.k.

Namens de verkoper nodigen wij kandidaten uit om uiterlijk 1 juli 2022 een voorstel uit te brengen.

  • 1.480 m2
  • 2.687 m2

Features Marsweg 40

Overdracht

StatusVerkocht
Prijs€ 1.000.000,- k.k.
AanvaardingIn overleg

Oppervlaktes en inhoud

Soort ObjectBedrijfsruimte
Oppervlakte1.480 m2
Perceeloppervlakte2.687 m2
Vloerbelasting500 kg p. m2
Bedrijfshal vrije hoogte450 cm

Parkeergelegenheid

Parkeerplaatsen25
Overdekt parkerenop het eigen terrein zijn parkeervakken ingericht
Onoverdekt parkerenop het eigen terrein zijn parkeervakken ingericht

Bouw

BouwvormBestaande bouw
Bouwjaar1992
Bouwjaar toelichtingbedrijfspand met kantoor

Overig

LocatieBEDRIJVENTERREIN
Aantal lagen1
Onderhoud binnenGoed
Onderhoud buitenGoed

Location Marsweg 40

Comparable corporate offer