Ga naar inhoud

Sassenstraat 33

8011 PB Zwolle

De Graaf van Vilsteren Garantiemakelaars
Contact me

Verhuurd

€ 630,- p.m

  1. Home>
  2. Business properties>
  3. Huur Zwolle Sassenstraat 33

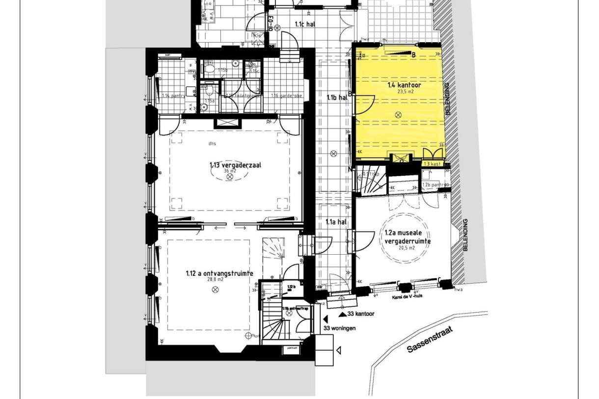
Kantoorruimte in een beeldbepalend monumentaal pand, onderdeel van het Hof van Ittersum, in het stadshart van Zwolle. Modern afgewerkt met behoud van veel opmerkelijke historische details.
Van de drie kantoorunits is deze unit, gelegen op de begane grond, momenteel beschikbaar voor verhuur.

Indeling:
Representatieve, statige, ingang in het Karel V-huis aan de Sassenstraat.
Via de met marmer belegde centrale entreehal komt u bij de ruime sfeervolle en rustige werkkamer (23,5 m²).
De kamer is gerestaureerd met een hoog afwerkingsniveau en met behoud van veel historische elementen.
De ruimte grenst aan een ruime (gemeenschappelijke) binnenplaats die via de grote raampartij een open gevoel aan de kantoorruimte verstrekt.
Via de hal bereikt u achtereenvolgens de gemeenschappelijke toiletgroep en een prachtige, zeer ruime, historische keuken (eveneens voor gemeenschappelijk gebruik).

Bijzonderheden:
De historische keuken, de toilet en de buitenruimte is voor gezamenlijk gebruik.

Locatie:
Het Hof Van Ittersum, met daarin opgenomen het Karel V-huis, is gelegen aan de Sassenstraat, met al haar winkels en horecagelegenheden op loopafstand.
De kantoorruimte maakt deel uit van een historisch complex met drie kantoorruimten op de begane grond en drie appartementen op de verdiepingen.
De werkkamer ligt aan de achterzijde aan de patio en is een oase van rust.

Huurprijs: € 630,- p/mnd (kale huur)
Voorschot g/w/e en servicekosten: € 150,- p/mnd
Glasverzekering: € 3,60 p/mnd

Waarborgsom: 2 maanden huur
Algemeen: voorbehoud t.a.v. kwaliteit huurder
Aanvaarding direct beschikbaar
Huurperiode: in nader overleg

  • 24 m2

Features Sassenstraat 33

Overdracht

StatusVerhuurd
Prijs€ 630,- p.m
AanvaardingDirect
Servicekosten€ 150,- p.m

Oppervlaktes en inhoud

Soort ObjectKantoorruimte
Oppervlakte24 m2

Parkeergelegenheid

Overdekt parkerenop 200 m is er een openbaar parkeerterrein
Onoverdekt parkerenop 200 m is er een openbaar parkeerterrein

Bouw

BouwvormBestaande bouw
Bouwjaar1571
Bouwjaar toelichtingoorspronkelijk

Overig

LocatieWINKELGEBIED_STADSCENTRUM
Aantal lagen1
Onderhoud binnenGoed
Onderhoud buitenGoed

Location Sassenstraat 33