€ 1.600,- p/m
Op unieke locatie gelegen in hartje van het oude stadscentrum met schitterend uitzicht over de Thorbeckegracht en de oude stadsmuren, een geheel nieuw gebouwde Bovenwoning met groot dakterras, balkon en fietsenberging.
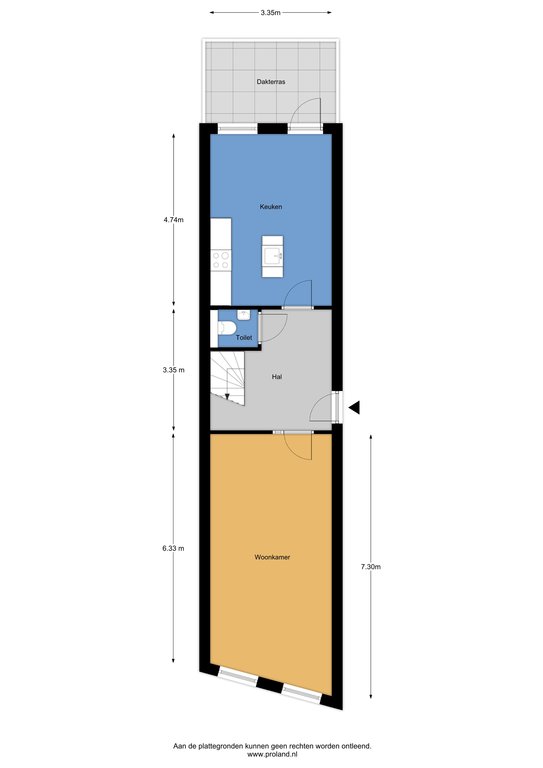
Indeling:
begane grond, hal met meterkast en opgang naar:
1e Verdieping:
royale hal met garderobe, luxe toilet, woonkamer met zwarte tegelvloer en vloerverwarming en uitzicht over de gracht,
royale woonkeuken met moderne inrichting, apparatuur en spoeleiland; toegang naar comfortabel en koel dakterras met uitzicht over de oude binnenstad.
2e Verdieping:
overloop met ruimte voor de wasmachine en droger; sfeervolle ouderslaapkamer met hoog plafond en dakraam; slaap/hobbykamer met vaste kasten en balkon; ruime badkamer met luxe douchecabine en wastafelmeubel.
Algemeen:
* fantastische ligging aan de mooiste gracht van Zwolle
* uniek uitzicht over Pelserbrug
* moderne en strakke uitvoering
* woonkamer en keuken met zwarte tegelvloer en vloerverwarming
* nieuwe c.v. combi ketel
* geheel dubbel glas; dak- en muurisolatie
* energielabel A
* betonnen verdiepingsvloer.
* balkon en dakterras
* een gedeelde berging met de buren aan de achterzijde voor bv fietsen.
* zeer centraal gelegen t.o.v. alle voorzieningen
* parkeren middels vergunning voor de deur
Aanvaarding: 1 oktober 2024
Huurprijs: € 1.600,= per maand excl. energie en service
- 80 m2
- 2
Features Thorbeckegracht 42A
Overdracht
| Huurprijs | € 1.600,- p/m |
|---|---|
| Aanvaarding | Per datum |
Oppervlaktes en inhoud
| Woonoppervlakte | 80 m2 |
|---|---|
| Inhoud | 220 m3 |
Bouw
| Soort | Bovenwoning |
|---|---|
| Bouwvorm | Bestaande bouw |
| Bouwjaar | 2008 |
| Dak type | Zadeldak |
| Isolatievormen | Dakisolatie, Dubbelglas |
| Energielabel | A |
Indeling
| Aantal verdiepingen | 2 |
|---|---|
| Aantal kamers | 3 |
| Aantal slaapkamers | 2 |
| Aantal badkamers | 1 |
Monthly costs
Location Thorbeckegracht 42A
Voorzieningen
- obs De Springplank 300 m Beukenstraat 83 ZWOLLE
- Viaa-Gereformeerde Hogeschool 956 m Grasdorpstraat 2 ZWOLLE
- C I B A P 749 m Nijverheidstraat 11 ZWOLLE
- Viaa-Gereformeerde Hogeschool 956 m Grasdorpstraat 2 ZWOLLE
- Theologische Universiteit van de Gereformeerde Kerk (Vrijg) in Nederland 13 km Broederweg 15 KAMPEN
Centraal gelegen informatie over de buurt
Aantal inwoners
In de gemeente
125.548
Leeftijd
in percentages van totaal
Huishoudsamenstelling
in percentages van totaal
55%
20% NL
31%
20% NL
14%
20% NL